Sol, oplevelser og boliger for alle
Skrevet af Torben Wilkenschildt, lør, 16/05/2015 - 00:01
Klumme
KLUMME: Vi har en investor til boliger, der kan blive velegnede for alle - også for mennesker med et handicap.
I min klumme forrige lørdag skrev jeg om, hvordan Spanien i Dag nu slår et slag for de ældres og handicappedes muligheder for oplevelsesture og ophold i lejeboliger i Sydspanien.
Det har vi fået rigtigt god respons på.
Solen

Alle kan nyde solen
Det er en kendt sag, at mennesker - ikke mindst de ældre og sygdomsramte - har et betydeligt bedre velvære og helbred i Sydspaniens solrige klima.
Vi har eksempelvis erfaring med gigtpatienter, der kan halvere deres normale medicinforbrug og oplever færre ledsmerter.
Lyset og de lange dage om vinteren taler sit eget sprog.
Oplevelserne

Fra weekend-artiklen 'Med stok over sten', som alle kan klare
Forrige lørdag fortalte jeg i min klumme om, hvordan vi nu vil klassificere alle vores Spanien i Dag Weekend - vores skønne oplevelsesartikler, der publiceres hver søndag.
Klik her for at læse den klumme
Vi fik god respons og ikke mindst fra Dansk Handicap Forbund, der udtrykte glæde over vores initiativ. Faktisk kommer der omtale af det i foreningens næste blad.
Der har været travlt i vores IT-afdeling i denne uge for at få søgesystemet op at stå, og det lykkedes at have det færdigt til i dag!

Søgeboksen ligger nederst i højre spalte på www.spanienidag.es og som der står, er søgesystemet under test.
Du kan søge på tre forskellige kategorier:
- Tilgængelig for alle
- Tilgængelig for gangbesværede og assisterede kørestolsbrugere
- Tilgængelig for gangbesværede
Personer, der bruger el-scooter, kan i mange tilfælde sidestilles med assisterede kørestolsbrugere.
Nu mangler vi “kun” at få ændret godt 200 oplevelsesartikler, så de indgår i søgesystemet. Vi glæder os til, at de bliver klar.
Boligerne

I Danmark kæmper Dansk Handicap Forbund for, at nye boliger skal være tilgængelige for alle. Det vil sige, at både raske og handicappede skal kunne bo i dem.
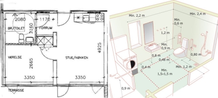
Og det er faktisk ikke særligt vanskeligt at opfylde. Det kræver bredere døråbninger, et badeværelse med ordentlig plads og ingen trin over 2,5 centimeter. Dertil selvfølgelig også andre krav, men er de taget med i projektet, kan det også give ikke-gangbesværede en række fordele.
Sydspanien nærmest flyder over med ferielejligheder, der kun kan beboes af mennesker uden gangbesvær. Små lejligheder, små værelser, små badeværelser og døråbninger, hvor ikke engang en bredskuldret mand kan gå igennem uden, at det sker sidelæns…
Jeg har været ude at se på flere hoteller, der reklamerer med, at de er handicap-venlige. Jo, der er fine adgangsforhold med ramper, men elevatoren er så smal, at ikke engang en rollator kan komme ind.
Og så kan rampe være rampe lige så mange gange.
Boliger søges
.jpg)
Vores investor ved, at markedet for udlejningsboliger til ældre er stigende. Derfor søger han lejligheder, der er velegnede til handicappede - eller kan blive det ved en rimelig ombygning.
Beliggenheden skal være på strækningen Calahonda til Torremolinos - Fuengirola/Mijas foretrækkes.
Der skal være udsigt til havet, anden attraktiv udsigt eller særligt god beliggenhed.
Døråbninger skal være - eller kunne udvides til - minimum 77 centimeter. Badeværelset skal - eventuelt ved ombygning - opfylde en fri diameter på 1,5 meter mellem saniteten.
Boligen skal - eventuelt efter bygning - indeholde mindst stue, køkken (eventuelt amerikansk), terrasse, soveværelse og badeværelse.
Prisen skal være i overensstemmelse med gældende markedsvilkår og efter ombygning være rentabel ved udlejning.
Har du en bolig, der kan være et emne?
Eller kender du nogen, der måtte have en? Det kan også være, du er ejendomsmægler.
Så send venligst en mail til mig her
Dansk Handicap Forbund arbejder for, at mennesker med handicap får de samme muligheder i samfundet som ikke-handicappede. Målet er at skabe et samfund med lige muligheder for alle.
Det prøver vi at hjælpe med til, så godt vi kan her i Sydspanien.
Teamet bag Spanien i Dag ønsker dig en god weekend.
Torben Wilkenschildt
Annonce:
Kunne du tænke dig en beskyttet ferie i Sydspanien, hvor dansk personales omsorg er i højsædet?
Læs mere her: www.beskyttetferie.es
Kan måske også interessere dig
Endelig påskens "vigtigste" begivenhed …
Nu har redaktionen vist opfyldt 80% af vores læseres ønske om - mere eller mindre - at kunne læse om påske-processionerne.
Hvert femte kongresmedlem er boligudlejer
Både Sánchez og Feijóo hører til blandt de 66 kongresmedlemmer.
Vil du med en tur til månen?
Imponerende ørkenlandskab 70 kilometer fra Pyrenæerne.
COPYRIGHT: Det er ikke tilladt at kopiere hverken helt eller delvist fra Spanien i dag uden aftale.
Gratis i din indbakke hver dag!
Abonnér på nyhedsbrevet Spanien i Dag og vær på forkant med begivenhederne.
Klik her for at tilmelde dig.



















